O FIRMIE
INWESTYCJE
AKTUALNOŚCI
KONTAKT
INWESTYCJA 01
Osiedle Zielone Tarasy
INWESTYCJA 02
Apartamenty Batory 10
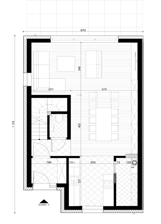
Budynek nr 22 / segment A - zabudowa bliźniacza
CENA BRUTTO
600 000,00 zł
BUDYNEK
22
STATUS
Dostępne
PIĘTRO / SEGMENT
A
LICZBA POKOI
5
POWIERZCHNIA OGRODU
411.9
DOSTĘPNE
TAK
Galeria
Wiatrołap (parter)
3,30 m
2
Korytarz (parter)
2,40 m
2
Schody (parter)
2,50 m
2
WC (parter)
1,50 m
2
Salon + jadalnia (parter)
35,70 m
2
Kuchnia (parter)
8,30 m
2
Pomieszczenie gospodarcze (parter)
3,70 m
2
Schody (piętro)
1,50 m
2
Korytarz (piętro)
6,90 m
2
Pokój (piętro)
10,60 m
2
Pokój (piętro)
10,00 m
2
Łazienka (piętro)
4,20 m
2
Pralnia (piętro)
1,90 m
2
Sypialnia (piętro)
12,40 m
2
Pokój (piętro)
10,90 m
2
Razem:
115.80 m
2
Razem z tarasem i garażem:
487 m
2
Karta budynku nr 22