Domy zaprojektowane z myślą o wygodzie
Zarówno domy w zabudowie szeregowej, jak i bliźniaczej, cechuje wysoki standard i funkcjonalność. Każdy segment został starannie zaprojektowany, aby zapewnić przestrzeń dzienną i nocną, zachowując jednocześnie poczucie intymności i niezależności. Dodatkowo, własny ogród oraz miejsce parkingowe sprawiają, że życie tutaj to prawdziwy komfort.
„Pod klucz”
Dla tych, którzy nie chcą trudzić się wykańczaniem domu czy jego urządzaniem, mamy dobrą wiadomość - dwa domy z naszej oferty są już gotowe do zamieszkania od razu po zakupie. To doskonała okazja, by szybko rozpocząć swoje nowe życie w wymarzonym miejscu, bez zbędnego oczekiwania i stresu związanego z przygotowaniami.
Inwestycja z charakterem
Inwestycja, którą realizujemy łączy w sobie współczesną architekturę, komfort i prestiż z dala od miejskiego zgiełku. Nowoczesne Osiedle Zielone Tarasy położone jest nieopodal uroczego lasu, którego zieleń działa uspokajająco, a spacery wśród leśnych ścieżek przyniosą ukojenie i wyciszenie nawet po ciężkim dniu.

.png)
Twoje miejsce, twój dom
Tutaj zaczyna się prawdziwe życie domowe. Nasze domy oferują nie tylko komfortowe wnętrza, ale także możliwość stworzenia własnego, wyjątkowego miejsca. To tutaj można spełnić marzenia o domu z ogródkiem, w którym każdy dzień staje się wyjątkowy.

Oaza spokoju w malowniczej okolicy
Nasza inwestycja to nie tylko domy, to styl życia. Położone w otoczeniu spokojnej wsi, pól i uroczego lasu, oferują niepowtarzalną harmonię z naturą. Spacerując wśród leśnych ścieżek, można odetchnąć pełną piersią i odnaleźć spokój nawet po najbardziej stresującym dniu.

Komfort i prestiż w jednym
Osiedle Zielone Tarasy to połączenie nowoczesnej architektury z niezrównanym komfortem codziennego życia. Wysoka estetyka i funkcjonalność każdego detalu dodają prestiżu zakupionemu segmentowi. Ponadto, lokalizacja z dala od miejskiego zgiełku sprawia, że życie tutaj staje się prawdziwą przyjemnością.
Lokalizacja spełniająca wszystkie potrzeby
Nasze domy są idealnie usytuowane, aby zapewnić dostęp do wszystkich niezbędnych udogodnień, jednocześnie pozostając z dala od miejskiego chaosu. Bliskość Raciborza, granicy polsko-czeskiej oraz Drogi Wojewódzkiej nr 416 to tylko kilka z zalet naszej lokalizacji, które sprawiają, że inwestycja staje się jeszcze bardziej atrakcyjna.
Wymarzone miejsce, z dala od miasta, lecz ze wszystkimi potrzebnymi udogodnieniami i blisko natury. Dogodna lokalizacja umożliwia sprawny dojazd do Raciborza, granicy polsko-czeskiej, a także do obwodnicy Raciborza - nowego śladu Drogi Wojewódzkiej 935. To największy atut naszej inwestycji.

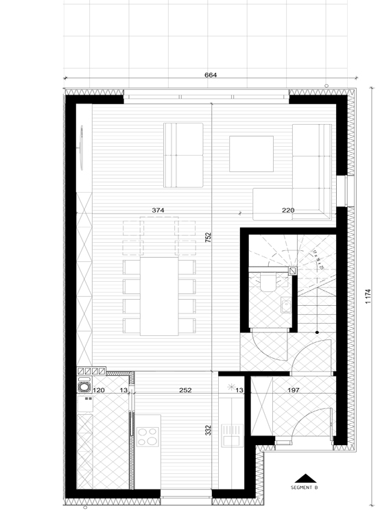
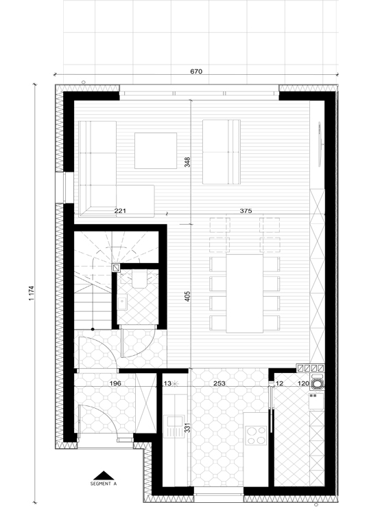
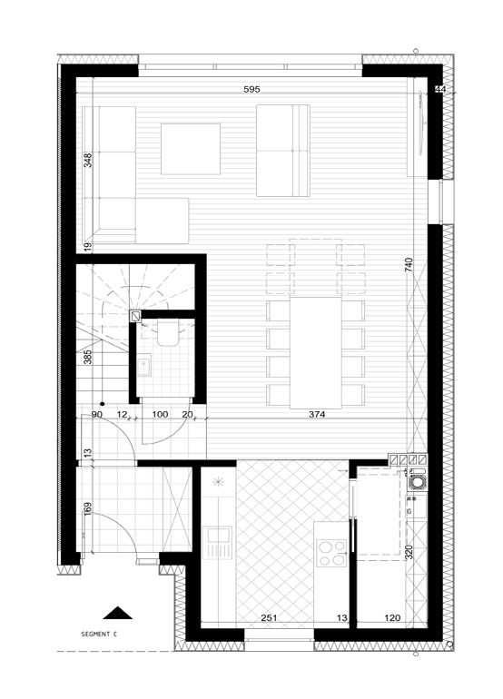
Przedmiotem ogłoszenia jest 5-pokojowy dom o powierzchni 115,80 m2 w zabudowie szeregowej, zlokalizowany we wsi Kornice niedaleko Raciborza.
Dom jest w stanie surowym zamkniętym i posiada przyłącze wody, kanalizację sanitarną, kanalizację deszczową oraz kanalizację kablową dla przyłącza elektrycznego.
Dom posiada:
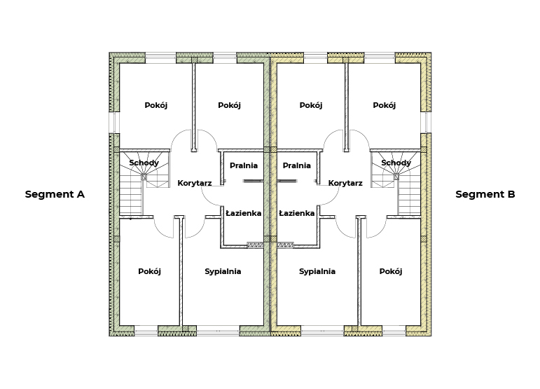
Domy w zabudowie szeregowej charakteryzują się wysoką estetyką i spójnością. Segmenty zorientowane są wschód-zachód, a każdy z nich posiada wydzieloną część dzienną na parterze oraz część nocną na piętrze. Własna zielona strefa za domem zapewnia niezależność i komfortową strefę prywatną.
Oddajemy do Państwa dyspozycji niskiej zabudowy segment A, B oraz C, 5 pokojowe o łącznej powierzchni 115,8 m2.
Szeregowiec zewnętrzny (segment A,C): 600 000 zł
Szeregowiec wewnętrzny (segment B): 500 000 zł
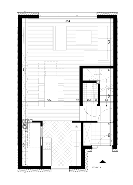
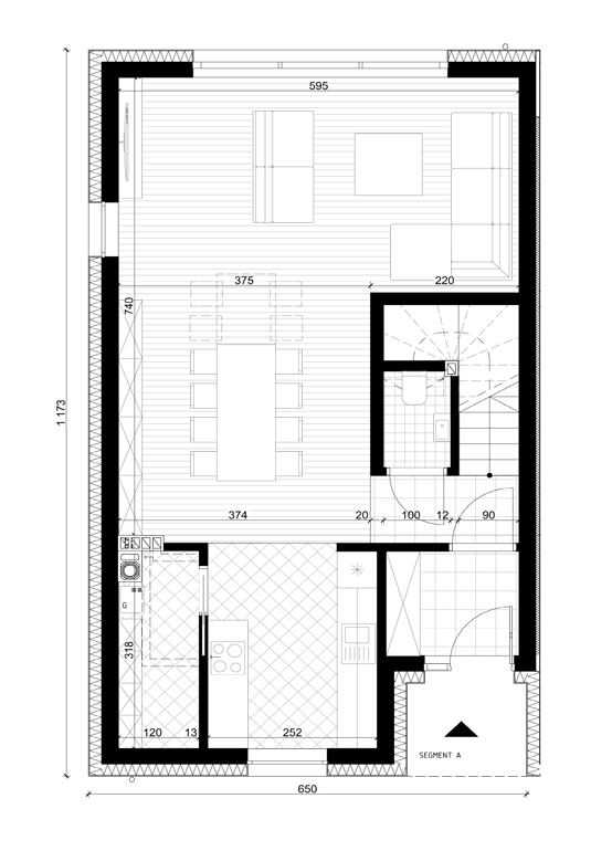
Przedmiotem ogłoszenia jest 5-pokojowy dom o powierzchni 115,80 m2 w zabudowie bliźniaczej, zlokalizowany we wsi Kornice niedaleko Raciborza.
Dom jest w stanie surowym zamkniętym i posiada przyłącze wody, kanalizację sanitarną, kanalizację deszczową oraz kanalizację kablową dla przyłącza elektrycznego.
Dom posiada:
Dom w zabudowie bliźniaczej to atrakcyjna propozycja dla ceniących sobie przestrzeń oraz niezależność. Dzięki swojemu lustrzanemu odbiciu, domy tworzą spójny układ, zorientowany na wschód-zachód, a strefa wejściowa w podcieniu chroni przed opadami atmosferycznymi.
Oddajemy do Państwa dyspozycji niskiej zabudowy segment A oraz segment B. Każdy z nich posiada wydzieloną na parterze część dzienną i nocną na piętrze o łącznej powierzchni 115,8 m2, a także ogród i miejsce parkingowe.
Cena: 600 000 zł
Przedmiotem ogłoszenia jest 5-pokojowy dom o powierzchni 115,80 m2 w zabudowie bliźniaczej, zlokalizowany we wsi Kornice niedaleko Raciborza.
Dom jest gotowy do zamieszkania, wszystkie pomieszczenia są wykończone, a łazienka i kuchnia w pełni wyposażone. Nowy właściciel nie musi zajmować się wykańczaniem wnętrz.
Dom posiada:
Budynki jednorodzinne w zabudowie szeregowej oraz bliźniaczej zaprojektowane zostały w sposób harmonijny. Każdy z lokali posiada własny ogród, zapewniający komfortową przestrzeń prywatną, a krajobraz urozmaicony został różnorodną zielenią, którego dopełnieniem jest łąka kwietna zlokalizowana w samym środku nowoczesnego osiedla.
Dostępność różnorodnych opcji
Inwestycja odpowiada na różne preferencje i potrzeby, nasza oferta obejmuje różnorodne typy domów - od segmentów w zabudowie szeregowej po domy bliźniacze. Dzięki temu każdy klient może znaleźć idealną opcję, która spełni wszystkie jego oczekiwania i zapewni wyjątkową jakość życia.