Idealne usytuowanie w ścisłym centrum miasta i w obrębie najważniejszych szlaków komunikacyjnych to doskonałe miejsce do codziennego funkcjonowania. Przemyślane projekty przestrzennych apartamentów, wysoka jakość wykonania i nowoczesny design to cechy charakterystyczne naszej inwestycji.

Budynek Apartamenty Batory 10 mieszczą się w Raciborzu przy ul. Króla Stefana Batorego. Doskonała lokalizacja: w ścisłym centrum, naprzeciw magistratu miejskiego, nieopodal dworca autobusowego, w pobliżu starówki, zapewni komfortową przestrzeń życiową dla najbardziej wymagających mieszkańców.
Mieszkania z charakterem
Estetyka i spójność – tak w skrócie można opisać inwestycję Batory 10. Przemyślany i funkcjonalny rozkład pomieszczeń daje doskonałe pole do zagospodarowania ich przyszłym lokatorom. Apartamenty charakteryzują się pomieszczeniami o zróżnicowanych metrażach, w zależności od preferencji i wymagań przyszłych mieszkańców. Oddajemy do Państwa dyspozycji 5 rodzajów mieszkań.
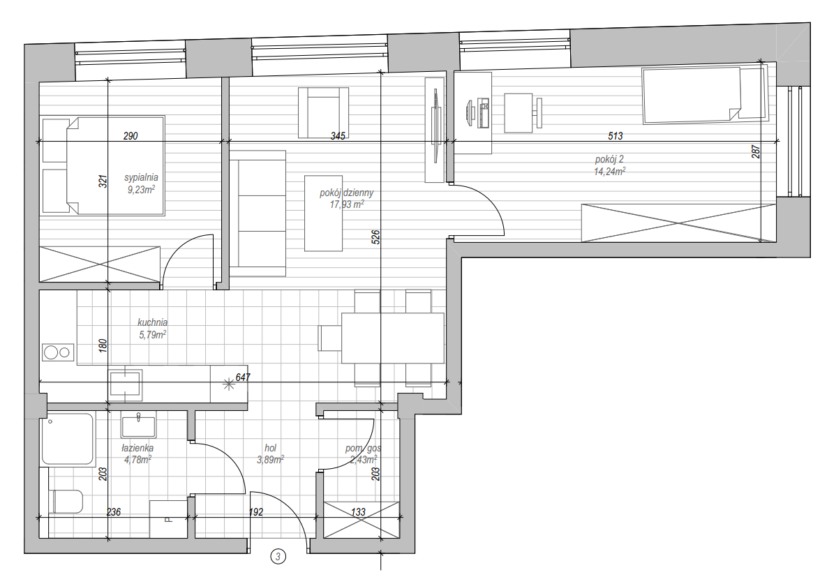
Mieszkanie o powierzchni 58,3 m2. Jest to przestrzeń perfekcyjnie skrojona dla osób poszukujących przestronnego mieszkania w centrum miasta. Dwa pokoje dzienne, sypialnia, pomieszczenie gospodarcze, hol, łazienka i kuchnia – gwarantują pole do popisu dla rodzin, które chcą zamieszkać w doskonałej lokalizacji.
TYP III, 3 piętro: 354 500 zł
WIRTUALNY SPACER [tutaj]
Ten czterokondygnacyjny budynek, w którym na parterze zlokalizowane zostaną lokale usługowe, zaś na piętrach: pierwszym, drugim i poddaszu – lokale mieszkalne, charakteryzuje harmonijny układ pomieszczeń i przestronność wnętrz. 15 niezależnych apartamentów zostało zaprojektowanych tak, by tworzyły komfortową, przytulną przestrzeń w centralnym punkcie miasta.